查看: 23647|回复: 7

关于修建汪华墓碑廊的公 告

[复制链接]

773

主题

377

回帖

8558

积分

管理员

积分
8558
QQ
发表于 2018-4-27 09:27:07 | 显示全部楼层 |阅读模式
   



   歙县云岚山汪王墓系安徽省重点文物保护单位,墓园东前方有两块大石碑,是历史遗存文物,十分珍贵。因日晒雨淋急需保护,歙县人民政府文物局规划修建汪华墓碑廊,方案编就,现予以公告,敬请关注。
   我会已组织相关资质单位参与碑廊修建的前期工作,敬请全国各地宗亲为此多多献智献力!
   特此公告!


                                                                                               黄山市汪华文化研究会
                                                                                                        2018426






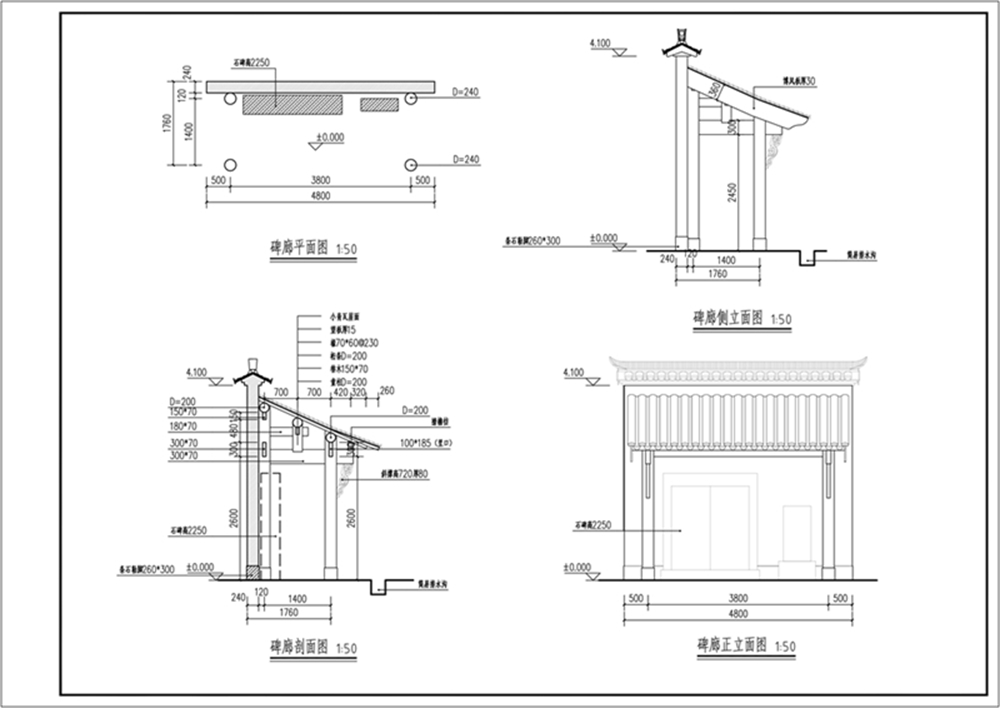
华墓碑廊图纸





20184




编 制 说 明
一、本工程概算依据2000年《安徽省仿古建筑及园林工程估价表》及《安徽省仿古建筑及园林工程费用定额》,并结合现场实际破损情况进行编制。
二、本概算以建设单位的要求和范围为依据进行编制。
三、本概算依据《汪华墓碑廊图纸》进行编制。

工 程 造 价 汇 总 表
序号
费用名称
单位
计算式
金额
工程直接费
A+B+C+D+E
16928.87

A
定额直接费
 
9914.59
B
流动施工津贴
137.37×3.5元/工日
480.80
C
材差
 
5686.00
D
其它直接费
(A+B+C)×0.25%
40.20
E
现场经费
(A+B+C)×5.02%
807.29
间接费
(一)×4.42%
748.26
利润
(一+二)×5.0%
883.86
人工工资增加费
(68-25.84-3.5)×137.37
5310.72
不取费项目
 
4400.00
税金
(一+二+三+四+五)×3.348%
946.54
勘察设计费
 
 
工程总造价
一+二+三+四+五+六+七
29218.25

工 程 概 算 表
项目工程:汪华墓碑廊工程
定额编号
工程或费用名称
单位
数量
单价
金额
人工工日
2-292
盖瓦
10m²
1.40
415.87
582.22
6.01
2-614
屋面板
10m²
1.40
293.97
411.56
3.14
2-507
椽条
m³
0.30
1437.11
431.13
2.55
2-478
桁条
m³
0.50
1219.05
609.53
4.42
2-472
木枋
m³
0.70
1435.19
1004.63
11.12
2-452
木柱
m³
0.50
1837.76
918.88
15.60
估价
梁撑
2.00
800.00
1600.00
 
估价
柱磉
4.00
700.00
2800.00
 
2-198
磉托石制作
10m²
0.10
3014.90
301.49
13.97
2-206
磉托石安装
10m²
0.10
400.69
40.07
0.58
2-349
2-350
屋面檐口勾头滴水
10m
0.50
84.58
42.29
0.53
1-74
墙体
m³
5.00
186.86
934.30
10.50
1-464
外墙粉刷
10m²
5.00
81.17
405.85
6.90
1-122
C20砼基础
m³
1.50
343.12
514.68
4.38
2-187
条石制作
10m²
0.15
4743.53
711.53
22.62
2-202
条石安装
10m²
0.15
492.28
73.84
2.75
2-304
三线马头瓦脊
10m
0.50
427.23
213.62
4.09
2-343
翘尾脊头
2.00
63.40
126.80
2.60
2-808
外脚手架
10m²
5.00
62.10
310.50
1.95
2-814
斜道
1.00
1791.96
1791.96
17.33
1-52
平整场地
10m²
6.00
14.47
86.82
3.36
1-441
砼明沟
10m
2.00
201.45
402.90
2.98
 
小计
 
 
 
14314.59
137.37

项目工程:汪华墓碑廊工程
材料名称
单位
数 量
预算价(元)
市场价(元)
差额(元)
原木
m³
1.00
850.00
2000.00
1150.00
松木成材
m³
1.50
1000.00
3500.00
3750.00
勾头滴水
132.00
0.80
3.80
396.00
小青瓦
3000.00
0.13
0.26
390.00
合计
 
 
 
 
5686.00
 
 
 
 
 
 

碑廊-图纸.jpg


做好汪华文化研究会办公室工作

60

主题

1190

回帖

2万

积分

光明使者

清贫乐道,敬宗爱祖。

积分
28851
发表于 2018-4-27 10:30:13 | 显示全部楼层
学习了。

169

主题

3923

回帖

7万

积分

版主

我是汪洋大海一滴水。

积分
74233
发表于 2018-4-27 11:05:35 | 显示全部楼层
我们是越国公汪华的后裔.为他修墓碑廊天经地义,坚决支持。另外.后来刻录的捐款名单的石碑是否应该也一次性解决移用廊内呢?
祝汪氏家族枝繁叶茂与日月同辉!

169

主题

3923

回帖

7万

积分

版主

我是汪洋大海一滴水。

积分
74233
发表于 2018-4-27 11:05:39 | 显示全部楼层
我们是越国公汪华的后裔.为他修墓碑廊天经地义,坚决支持。另外.后来刻录的捐款名单的石碑是否应该也一次性解决移用廊内呢?
祝汪氏家族枝繁叶茂与日月同辉!

169

主题

3923

回帖

7万

积分

版主

我是汪洋大海一滴水。

积分
74233
发表于 2018-4-27 11:05:45 | 显示全部楼层
本帖最后由 固始汪德进 于 2018-4-27 11:07 编辑

我们是越国公汪华的后裔.为他修墓碑廊天经地义,坚决支持。
另外.后来刻录的捐款名单的石碑是否应该也一次性解决移用廊内呢?

点评

本人操作有误.出現一稿多发,想删也办不了,请宗亲们谅解.此礼o  发表于 2018-4-27 21:28
祝汪氏家族枝繁叶茂与日月同辉!

116

主题

4033

回帖

7万

积分

版主

积分
76092
QQ
发表于 2018-4-30 21:06:50 | 显示全部楼层
黄山市汪华文化研究会的各位辛苦了!

90

主题

319

回帖

1万

积分

光明使者

哪位本家是清初湖广填川时汪真树

积分
11440
发表于 2018-8-31 16:18:49 | 显示全部楼层
支持
您需要登录后才可以回帖 登录 | 立即注册

本版积分规则

QQ| Archiver|手机版|小黑屋| 汪氏宗亲网

Copyright © 2001-2013 Comsenz Inc.   All Rights Reserved.

Powered by Discuz! X3.5( 皖ICP备2025101776号-1 )

快速回复 返回顶部 返回列表

 34100202000237